 |
| Stairs to Back Deck |
We have reached Day 66 since we first began the long and arduous process of Renovating. I came to the conclusion last night ~ never again. Yesterday was the worst day as we reached the dreaded :
"Oh Shit ~we dont have enough money" stage
To be perfectly honest ~ and this Blog is to be honest and show others like us ~ who want to renovate ~ the absolute cold, hard and glaring truth. We honestly thought we had borrowed ~ in our eyes ~ a substantial amount of money. We honestly thought our estimates of costs for building and renovating were quite fair and reasonable ....
Babes in the woods ..... naive precious sillybilly ....... Bless ém they are so cute ........
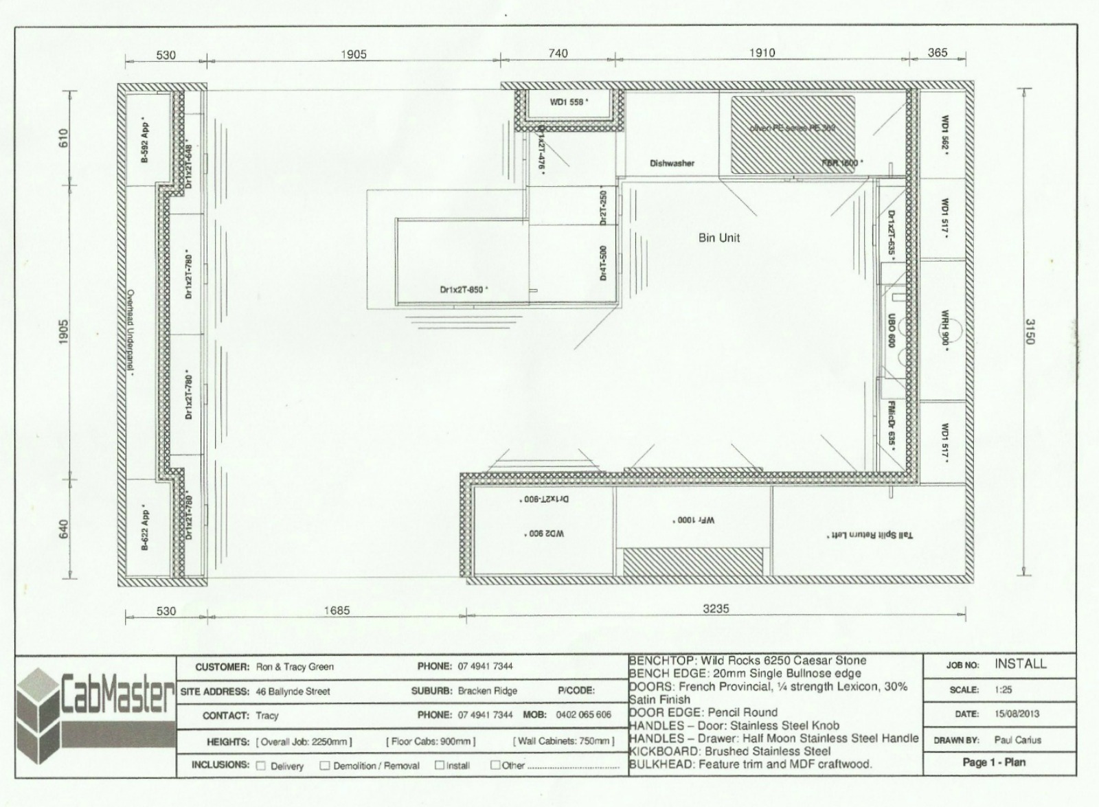
The kitchen / lounge / nook / study and downstairs quote came in and we had been working on the assumption it would be around the 30k mark. We dont want anything over the top fancy schmancy ~ Just a few nice built ins and a really nice kitchen. I mean sheesh ~we wont be renovating this place again so we want something we can really love for many many years.
Yep you guessed it ~about 10K above what we thought.
I have to admit there was a big cry from me but I think that may well have been down to being exhausted ~ then I wiped away the snotty nose ~ gave myself a shake and pulled on my Big Girl Underpants. I will pause here and note ~ we can have more money from the Bank ~ not a worry ~ but we
DON'T want to borrow anymore than what we thought was reasonable.
I will offer up to you dear reader the first ACTUAL piece of ACTUAL advice :
When you are given a "rough" quote for something? ~ DOUBLE it.
Now where are we in the Build?
We left The Bah about 7.00 pm on Thursday night for another Night Trip. We now share the driving as it is far to much for Mr Fab so one of us tries to catch a few zzzz while the other drives. We arrived about 7.28 at the house to find it literally SWARMING with blokes. The noise was horrific as the Tree Lopper was removing most of the beautiful old Australian Banksia? ( I will confirm that tree name later) from the back yard. It was a massive tree that literally takes up the entire bottom section of the yard and had to be trimmed ~ SERIOUSLY. We also discovered a few really bad trees which needed to be completely removed ~$900 dollars later and a stripped yard.
Chris The Scottish Builder was there with his Apprentices and ripping out whatever needed to be ripped out. He had finished the fences and was pulling doors out upstairs. Dexter was not impressed with all the noise but he does love his new and safe Back yard.
 |
| Side fence & gate |
Then Paul The Kitchen Dude from Starkey & Christoe
http://www.starkeyandchristoe.com.au/
arrived about 9 am and we began the final finishing drafts for the kitchen and ~ the extra work. I must stress ~ his quote is what it is and it is not his fault we thought it would be far less but I as usual .... digress. We are insane super pleased with our choices for the kitchen and we love that he puts in his ideas as well. He takes on each Kitchen as his own and makes suggestions to help you make the final choice.
He said to Chris The Builder as he was finishing:
Paul: "Chris is this wall going or staying?"
Chris The Scottish Builder: ( Picks up his hammer and smashes the wall then kicks it out ) ~ "Going "
Me: * sitting with hands on face and mouth open*
Dexter: *shivering at the noise*
Mr Fab: *laughing*
 |
| Kitchen |
 |
| Lets rip out a wall shall we? |
|
While he was there ~Jason The Tiler arrived to measure up and let us know how many zillions of tiles we will need to finish the build.
After they had gone we jumped in the car and yes we still had not had a shower, sleep or coffee ~ anyway we needed to go do the Tiles and the Bed.
We drove to the Aspley Homemaker Center and literally laughed out loud when we drove in to see 6 different Bedding Places. At Snooze we met Madison and I simply said to her ~ I will go to the other stores or she can do me an A ~MAZE ~ING deal and we can cut out the middleman. I was a woman on the edge and I think she saw it and took pity on me. The best little piece of news was her quote came in far cheaper than we had thought so we managed to get not only our new King Size Mattress & Bed but the Queen size mattress for the guest room! We also did The Snooze Bed Match and almost dozed off! I went back in and asked Madison to show me the beds Mr Fab had groaned as he tested ~I simply purchased the one he groaned the loudest after making sure I also almost passed out with sheer bliss .....
Mr Fab wanted no Bed foot on our Bed so .... wait for it ... Dexter doesnt find it so hard to jump up if he wants to .....
*Blink Blink*
 |
| The Bed from Snooze Aspley |
On to the Tile Place for Tile selection and I have to say ~THAT is an experience in itself! Another area where there are literally 10 Tile places next door to each other??? We finished up at Top Tiles and I must mention the gorgeous Angela and the hilarious Ben. Super helpful and really accommodating with laying out tile combinations all over the warehouse for us. We found all our tiles and they are paid for and sitting on a pallet waiting for us to have them delivered to site.
Grabbed some lunch? Breakfast? COFFEE and went back to 46 Ballynde Street where Chris The Builder must have used his canny sixth sense to know I was a little dissapointed. I can see they have demolished and removed and cleaned out the house but there was no COSMETIC things I could see. No shiny new anything ~no doors ( which made having a shower with a house full of blokes pretty hard ) and nothing to really see and touch.
Next thing I know ~we had a new Kwila railing on the Zen Balcony.
 |
| New Railing |
I was seriously chuffed.
After all the lads had gone we sat down and had a cuppa ~I lasted till about 5pm yes you read that correctly ~5pm and I fell asleep with Mr Fab right behind me ..... Tune in for Saturdays zany adventures in renovating later today!
Stay Fabulous
fs vintage
xx